Кран балка подвесная двух пролетная
-
Гарантия:18 мес.
-
Доставка:1-2 раб. дня
-
Оплата:По 20% предоплате
Основные технические характеристики подвесной двухпролетной кран-балки на 1 тонну

Основные технические характеристики подвесной двухпролетной кран-балки на 2 тонны

Основные технические характеристики подвесной двухпролетной кран-балки на 3.2 тонны

Основные технические характеристики подвесной двухпролетной кран-балки на 5 тонн

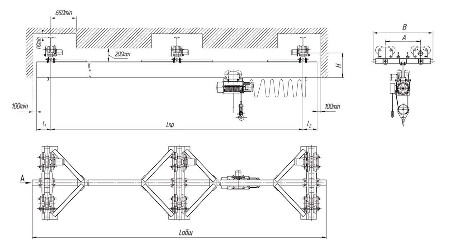
Подвесная двухпролетная кран балка - оборудование кранового типа, используемое для крепления подкранового пути прямо к конструкции здания.
Такие кран балки используются в закрытых цехах для передвижения тельферов по горизонтали.
Монтажные размеры

| Информация о товаре | |
|---|---|
| 1000-866 | |







